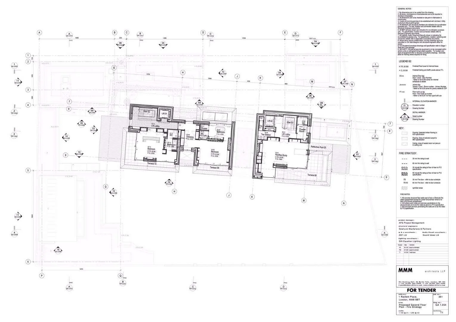
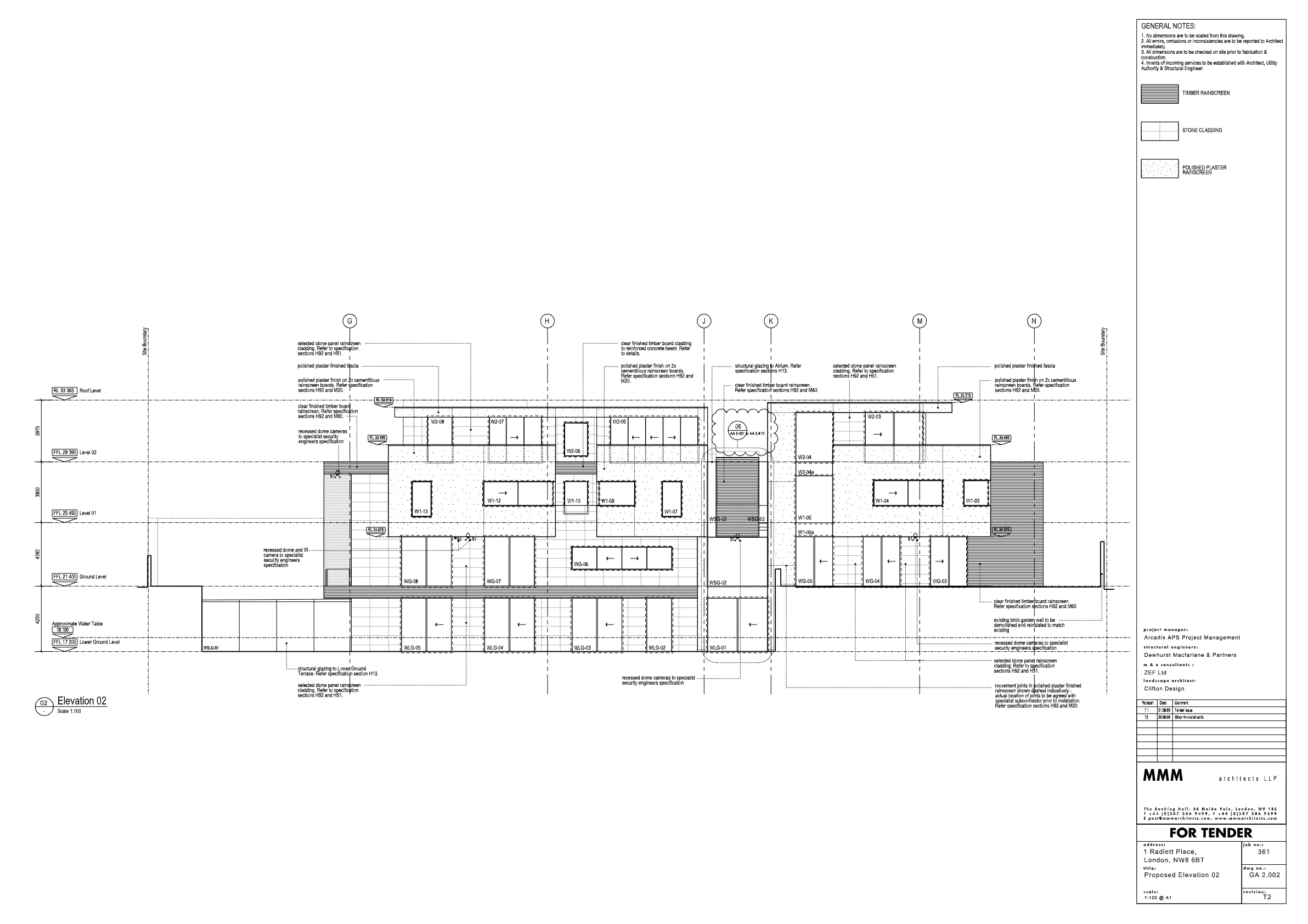
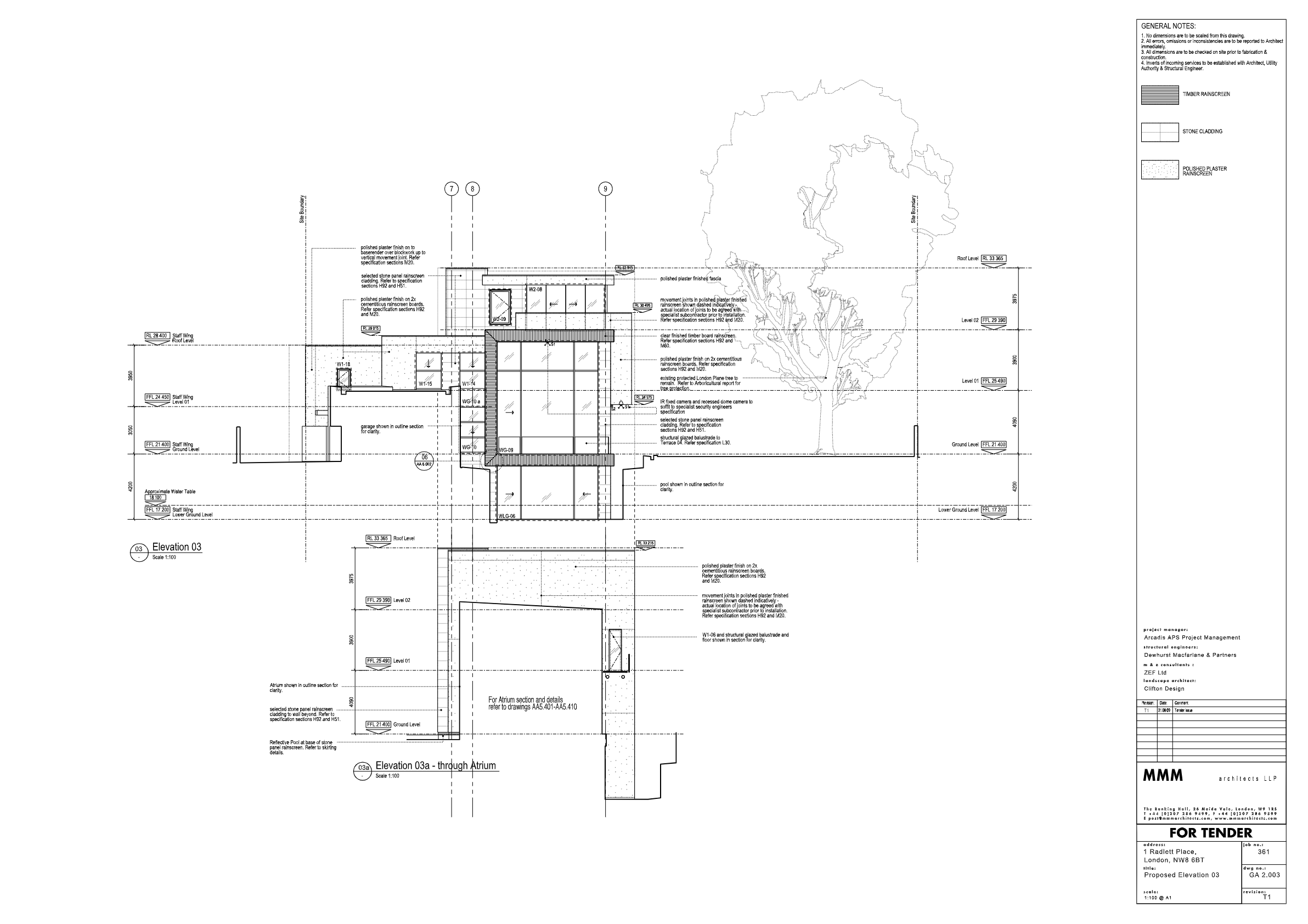
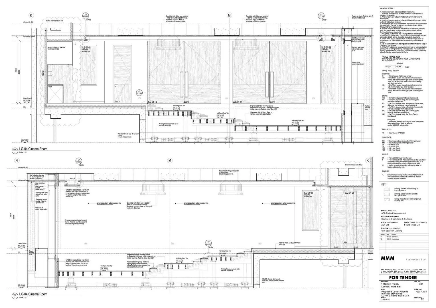
Radlett Place
2007-2011
£26m (S$ 47.5m)
3111 sq m / 33 487 sq ft
The clients purchased a property with Planning permission for 6 houses to be built on it, adjacent to and overlooking Primrose Hill in central London. The clients wanted to create a home base for their family, and we were asked to design a modern new residence for them. The house was situated in a Conservation Area, which was challenging, but permission was granted.
I was part of a larger team working on various aspects of the project, from Planning through to Tender. I was involved mainly in the production of information, including presentation drawings, design development of the elevations, coordination of structural elements and services, technical detailing, the development of the internal elevations and the production of various schedules.